お気軽にご相談下さい。お問い合わせ TEL 023-664-0437 営業時間(平日)10:00〜19:00(土曜)10:00〜16:00 定休日 日曜祝日・第2、4土曜日 ※事前に連絡がある場合はいつでも時間外・定休日も対応いたします。
メールでのお問い合わせはこちら| 賃料 | 110,000円 | 管理費/保険 | 10,000円/10,000円 |
|---|---|---|---|
| 敷金/礼金 | 2ヶ月/1ヶ月 | 仲介手数料 |
| 物件名 | 山形市宮町テナント | ||||||||||||||
|---|---|---|---|---|---|---|---|---|---|---|---|---|---|---|---|
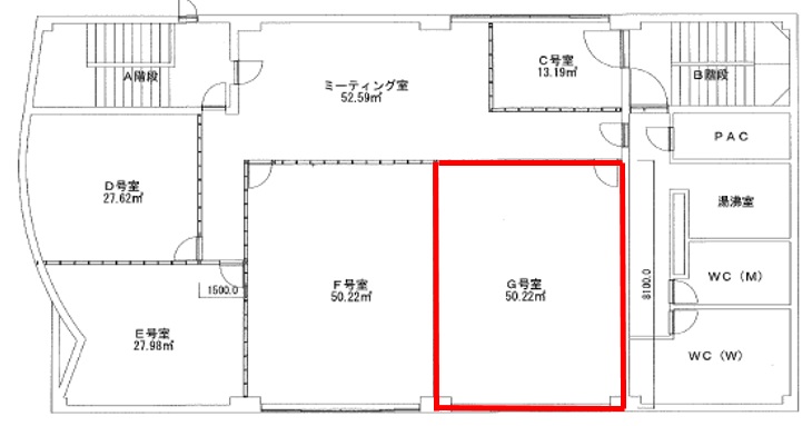
| 形式 | 1区画 | 専有面積 | 50.22u | ||||||||||||
| 所在階/建物階 | 3階/3階建 | 建物構造 | RC造 | ||||||||||||
| 築年月/完成予定 | 1994年(築32年) | ||||||||||||||
| 駐車場 | 1台 7,700円/台 | 交通手段 | 山交バス北駅角より徒歩約2分 | ||||||||||||
| 引渡し日 | 2018年9月 | 取引形態 | 貸主 | ||||||||||||
| 設備など |
|
||||||||||||||
| その他 | 消費税込 WC・給湯共用(定期清掃有) 共用リフレッシュルーム有 全館禁煙 OAフロアー 保証会社要加入 |
||||||||||||||
| オススメポイント | リニューアルしました! | ||||||||||||||
情報更新日/ 次回更新予定日/
写真をクリックすると拡大画像がご覧になれます。
※図面や画像と現況に相違がある場合は現況優先とします。
| 物件写真 | 間取り図 |
|---|---|
![]() |
![]() |
![]() ![]() |
|
| 地図 | |
![]()
条件から不動産物件を探す 地図から不動産物件を探す
お気軽にご相談下さい 023-664-0437 営業時間 (平日)10:00〜19:00 (土曜)10:00〜16:00 定休 日曜祝日・第2、4土曜日 ※事前に連絡がある場合は、いつでも時間外・定休日も対応いたします。株式会社七福へのメールでのお問い合わせはこちら 携帯・スマホでも簡単検索!! 左のQRコードを読み取って下さい http://www.shichihuku.net